Fragen über Fragen zum Neubau unserer Bücherei
Sie möchten wissen, warum der Neubau unserer Bücherei wichtig ist? Oder Sie interessieren sich für die Finanzen oder anderes?
Dann schauen Sie hier rein und erfahren Sie den aktuellen Stand.
Dann schauen Sie hier rein und erfahren Sie den aktuellen Stand.
Viele gute Gründe für den Neubau der Bücherei
Erfahren Sie hier, warum der Neubau nicht nur sinnvoll, sondern ein wirklicher Mehrwert für alle Schrozbergerinnen und Schrozberger - ob Jung oder Alt - ist.
Warum brauchen wir eine noch bessere Bücherei?
Büchereien gibt es bereits seit rund 4.000 Jahren! Sehr viele Experten sind sich einig, dass es auch in Zukunft noch Büchereien geben und ihre Bedeutung für Bildung und Gesellschaft mindestens bestehen bleiben wird. Dafür müssen sich Büchereien stetig wandeln, weiterentwickeln und anpassen. Hier finden Sie weitere Informationen zur Zukunft von Büchereien.
Die Arbeit, die unser Bücherei-Team in Schrozberg leistet, ist hervorragend.
Schrozberg hat die am stärksten genutzte Bücherei im Landkreis Schwäbisch Hall, gemessen an der Zahl der Ausleihen je Medium und der Anzahl der Entleihungen je Einwohner (lesen Sie hier mehr dazu). Aktuell hat unsere Bücherei 942 aktive Leser, das sind fast ein Fünftel aller Schrozberger Einwohner. Diesen stehen 9.338 Printmedien, 131 Spiele und 608 Zeitschriften zur Verfügung.
Die jetzigen Räumlichkeiten unserer Bücherei im 2. OG im Schloss Schrozberg sind zu eng:
- Es können aktuell nicht alle vorhandenen Medien im Hauptraum bereit gestellt werden.
- Für viele Aktionen wie z.B. Bücherbabys, Zusammenarbeit mit den Kindergärten, Leseeulentreff, Bilderbuchkino, Besuche der Schulklassen, Lesungen etc. reicht der Platz nicht aus.
Es ist die Meinung des Gemeinderats, dass unsere Bücherei fit für die Zukunft gemacht werden muss.
Auf Empfehlung der Fachstelle für Bibliothekswesen des Landes Baden-Württemberg soll der Medienbestand um rund 30% auf etwa 13.500 Medien insgesamt wachsen. Außerdem würde das Büchereiteam gerne noch mehr Aktionen anbieten, um vor allem Kinder für das Lesen zu begeistern.
Büchereien gibt es bereits seit rund 4.000 Jahren! Sehr viele Experten sind sich einig, dass es auch in Zukunft noch Büchereien geben und ihre Bedeutung für Bildung und Gesellschaft mindestens bestehen bleiben wird. Dafür müssen sich Büchereien stetig wandeln, weiterentwickeln und anpassen. Hier finden Sie weitere Informationen zur Zukunft von Büchereien.
Die Arbeit, die unser Bücherei-Team in Schrozberg leistet, ist hervorragend.
Schrozberg hat die am stärksten genutzte Bücherei im Landkreis Schwäbisch Hall, gemessen an der Zahl der Ausleihen je Medium und der Anzahl der Entleihungen je Einwohner (lesen Sie hier mehr dazu). Aktuell hat unsere Bücherei 942 aktive Leser, das sind fast ein Fünftel aller Schrozberger Einwohner. Diesen stehen 9.338 Printmedien, 131 Spiele und 608 Zeitschriften zur Verfügung.
Die jetzigen Räumlichkeiten unserer Bücherei im 2. OG im Schloss Schrozberg sind zu eng:
- Es können aktuell nicht alle vorhandenen Medien im Hauptraum bereit gestellt werden.
- Für viele Aktionen wie z.B. Bücherbabys, Zusammenarbeit mit den Kindergärten, Leseeulentreff, Bilderbuchkino, Besuche der Schulklassen, Lesungen etc. reicht der Platz nicht aus.
Es ist die Meinung des Gemeinderats, dass unsere Bücherei fit für die Zukunft gemacht werden muss.
Auf Empfehlung der Fachstelle für Bibliothekswesen des Landes Baden-Württemberg soll der Medienbestand um rund 30% auf etwa 13.500 Medien insgesamt wachsen. Außerdem würde das Büchereiteam gerne noch mehr Aktionen anbieten, um vor allem Kinder für das Lesen zu begeistern.
Was bringt uns eine Bücherei in einem Neubau?
Das Kulturgut Buch wird attraktiver präsentiert und die Attraktivität der Bücherei insbesondere für Kinder, Familien und Jugendliche wird gesteigert. Die Außenwirkung für die Stadt Schrozberg als Ort mit sichtbarer Lesekultur wird verbessert. Schrozberg wird als Bildungsstandort sichtbar.
Die Bücherei wird sichtbarer Teil der Stadt und die Weiterentwicklung zur Mediathek wird möglich. Die Bücherei selbst ist einladend, da sie offen für alle und leicht erreichbar ist - weil ebenerdig und barrierefrei.
Eine neue Bücherei in einem neuen Gebäude bietet
- uns Schrozbergerinnen und Schrozberger einen attraktiven Mehrwert und damit mehr Lebensqualität
- mehr Platz für mehr Medien
- endlich Platz für digitales Arbeiten und Arbeitsplätze
- mehr Platz zum Lesen und für Lesungen
- mehr Platz für Gruppen, Klassenführungen und Aktionen, wie „Bilderbuchkino“ durch mobile Regale
- mehr Platz bietet auch Ehrenamtlichen mehr Möglichkeiten, sich einzubringen
- Platz für ein eigenes Büro, eine Garderobe oder auch Aufenthalts- und Rückzugsorte für Jugendliche
- Platz für einen Spielbereich für Kleine und auch z.B. die Möglichkeit, Gesellschaftsspiele zu spielen
- sich als Treffpunkt und damit als Aufenthaltsort für alle Bevölkerungsschichten an.
Durch die Nähe zur Schule können wir die Medien- und Lesekompetenz als Grundlage für Bildung und Erfolg unserer Kinder steigern.
Außerdem gibt Professor Dr.-Ing. Jürgen Ulm zu bedenken, dass man die Bücherei an der Schule keinesfalls isoliert betrachten darf:
„Als ,geistige Tankstellen der Nation' hat Altbundeskanzler Helmut Schmidt einmal die Bibliotheken in Deutschland bezeichnet. Für deren Erhalt und Ausbau setzen sich seit 60 Jahren der Deutsche Bibliotheksverband (DBV) und seit 20 Jahren der Dachverband, Bibliothek & Information Deutschland (BID), ein. Sie bewegen damit Leser, Bücher und Meinungen. (Quelle: http://www.goethe.de/wis/bib/fdk/de5260853.htm)
Nur an die Bibliothek gedacht ist für mich daher doppelt zu kurz gegriffen. Der demographische Wandel erfordert eine Reaktion seitens des Ministeriums, mit dem Resultat, dass Schulen geschlossen werden müssen. Die einzelnen Schulen/Schulstandorte werden in aller Regel einer Prüfung unterzogen. Eine Bibliothek in direkter Nähe zur Schule würde sich in jedem Fall als Standortvorteil auswirken und damit hoffentlich zur Schulerhaltung beitragen."
Prof. Dr.-Ing. Jürgen Ulm
Im neuen Büchereigebäude wird eine „Bücherklappe“ eingerichtet werden, damit die Rückgabe von Medien zu jeder Zeit möglich ist. Außerdem wird der Einsatz von moderner Büchereitechnik, z.B. Selbstbuchung bei Ausleihe und Rückgabe, Nutzerlaptops, Tablets und WLAN möglich. „Selbstbuchung“ bedeutet auch: mehr Zeit für das Büchereipersonal für Beratung und anonymere Ausleihe (Diskretion), z.B. für Informationen zu Krankheiten oder anderen Ratgebern. Ein abgeschlossenes Büro für das Büchereipersonal sorgt für mehr Privatsphäre z.B. bei telefonischer Beratung.
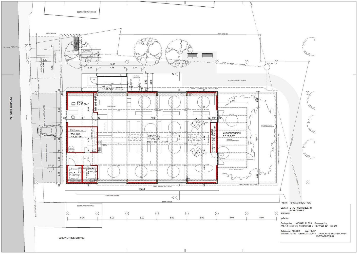
Wie soll die neue Bücherei aussehen?
Die neue Bücherei wird ein Flachbau. Durch den Seiteneingang kommt man direkt in den offen gestalteten Hauptraum. Der Blick fällt direkt auf die Ausleihetheke und die dahinterliegende Teeküche mit Kaffeeautomat. Im Hauptraum mit über 300 m² gibt es an den Seiten Lese- und Arbeitsnischen, die durch Regale voneinander getrennt sind. Auf der zentralen Fläche des Raumes stehen ebenfalls Bücherregale, die aber allesamt auf Rollen gestellt sind, damit der Raum bequem vom Büchereiraum zum großen Veranstaltungsraum umgestaltet werden kann. Auch können Themenregale für die Arbeit mit Klassen mit mehr Freiraum aufgestellt werden, damit die Schüler mehr Platz um die entscheidenden Bücher herum haben. Ein kleines Stuhllager und eine Freifläche für die wärmere Jahreszeit runden den Raum ab. Selbstverständlich sind auch öffentliche Toiletten vorhanden.
Schauen Sie sich hier die neuen Pläne direkt an!
Dank eines Büros können Telefonate mit Bürgern nun auch etwas abseits der Öffentlichkeit geführt werden und es bekommen nicht mehr alle Anwesenden mit, was gesprochen wird.
Eine Bücherklappe im Eingangsbereich ermöglicht die Abgabe von Büchern zu jeder Zeit, also auch für Schülerinnen und Schüler nach der Schule. Es muss nicht mehr für jeden Büchereigang mit den Eltern nach Schrozberg gefahren werden.
Was kostet die neue Bücherei?
Die Planungskosten für den Büchereineubau belaufen sich bisher auf ca. 35.000 Euro.
Investitionskosten
- Grunderwerb: 0 Euro
(Das Grundstück gehört bereits der Stadt Schrozberg. Die bestehende Bodenplatte kann genutzt werden)
- Bau- und Ausstattungskosten gesamt ca. 1.467.468 Euro
- Zuschuss: 644.000 Euro
(hier Details zum Ausgleichstock (410.000 Euro) und zur Städtebauförderung (234.000 Euro))
Die Fördermittel sind zweckgebunden. Sie können nur für den Neubau der Bücherei verwendet werden.
Laut Bescheid muss bis spätestens Mitte 2018 mit dem Neubau begonnen werden, sonst verfallen die Mittel.
Eine erneute Beantragung der Fördermittel ist theoretisch möglich, ein erneuter Bescheid in dieser Höhe wird mit hoher Wahrscheinlichkeit nicht möglich sein.
- Von der Stadt Schrozberg sind zu finanzieren: ca. 823.468 Euro
Laufende Kosten
Die laufenden Unterhaltskosten der Bücherei werden steigen, da
- verlängerte Öffnungszeiten höhere Personalkosten schaffen – egal an welchem Standort
- ein zusätzlicher Buchungsplatz eingerichtet werden soll, auch zur Selbstausleihe
- zusätzliches Reinigungs- und Hausmeisterpersonal notwendig werden wird.
Hier finden Sie detaillierte Infos zu den Kosten.
Warum keine „neue Bücherei“ im Schloss?
Platzbedarf und Statik
Die geplante Weiterentwicklung der Bücherei hat eine Zielgröße von 14.5000 Medien sowie mehr Arbeitsplätze, Leseräumen etc. Dafür wird von der Fachstelle für Bibliothekswesen ein Platzbedarf von 350 bis 420 m² empfohlen. Die aktuelle Bücherei im 2. OG des Schlosses hat derzeit ca. 140 m² Nutzfläche.
Selbst bei einer Nutzung aller Räume im 2. OG im Schloss ist die notwendige Nutzfläche nicht realisierbar. Die Nutzlasten für Büchereiräume liegen bei 600 kg/m² (Mindestwert laut DIN EN 1991-1-1/NA Kat. E). Diese Nutzlasten sind im Schloss statisch nicht möglich.
Barrierefreiheit
Seit 2010 wird für das gesamte Rathaus nach Lösungen gesucht, um Barrierefreiheit zu erreichen.
Für die Rathausebene im 1. OG wurde eine Lösung gefunden: 2018 wird ein Aufzug im Bereich des Foyer vor dem Ratssaal eingebaut. Die Büchereiebene ist durch diesen Aufzug jedoch nicht erreichbar. Effektiv wird ein Raum erschlossen, um dort eingeschränkten Bürgerinnen und Bürgern die Teilhabe zu ermöglichen.
Weitergehende Lösungen über das 1. OG hinaus werden vom Landesdenkmalamt keinesfalls genehmigt werden. Ein Außenlift ist bereits abgelehnt. Ein Innenlift ist technisch zu aufwendig und zu teuer und hätte eine Entkernung des Schlosses zur Folge, da die Statik hierfür nicht ausgelegt ist. Dem würde das Denkmalamt wiederum keinesfalls zustimmen. Ein Treppenlift als Alternative ist in einem öffentlichen Gebäude nicht zulässig, da laut DIN 18065 unter anderem nur Wohnungen oder vergleichbar genutzte Räume mit einem Treppenlift erschlossen werden dürfen. Die Verwaltung der Stadt plant weiterhin im 2. OG nur nicht-öffentliche Bereiche der Verwaltung unterzubringen.
Standortnachteile am aktuellen Platz im Schloss
Der überwiegende Teil der Bewohner der Schrozberger Teilorte und der Außenbereiche Schrozbergs fahren mit dem Auto zur Bücherei. Für diese Nutzer macht der genaue Standort keinen Unterschied, aber von den Parkplätzen am geplanten Neubau und Bahnhof sind es nur wenige, ebenerdige Schritte in die Bücherei.
Die Nähe zur Schule verkürzt den Laufweg deutlich. Dadurch wird viel wertvolle Unterrichtszeit eingespart. Die Schüler verbringen mehr Lehrzeit in der Bücherei und nicht auf stark befahrenen Straßen.




